Overview
- Updated On:
- 7 siječnja, 2026
- 594.00 m2
Opis
Prodajemo građevinsko zemljište površine 593m2(dimenzije cca 20x30m) s projektom na Medvescaku, na Mlinarskoj cesti.
Na zemljištu se trenutno nalazi stara kuća koja se može obnoviti ili srušiti i izgraditi nova.
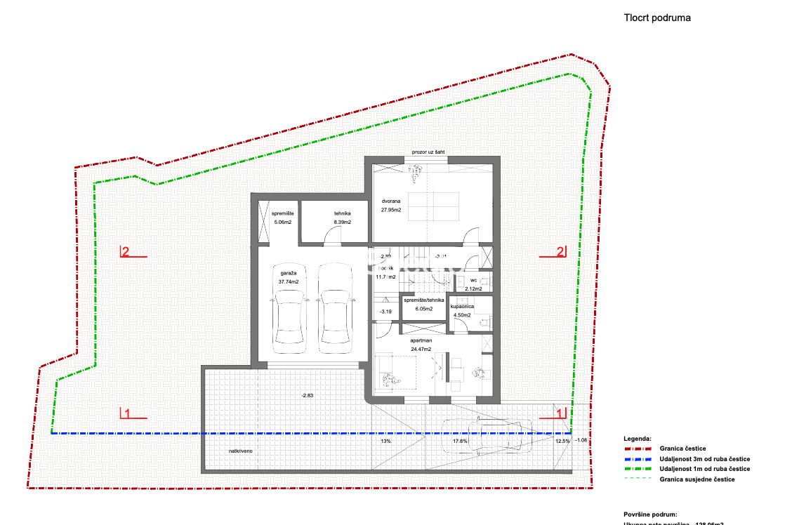
Predana je sva dokumentacija za ishođenje građevinske dozvole za vilu nkp 384m2 (brutto 505m2) koja se prostire na 3 etaže:
Podrum (163 m2): garaža za dva automobila, spremište, 2 sobe za tehniku, wc, teretana, apartman za goste.
Prizemlje (171 m2): open space dnevni boravak s blagavaonicom i kuhinjom, ostava, garderoba, prostorija za gospodarstvo, gostinjski wc i terasa sa ljetnom kuhinjom.
Kat (171 m2): master spavaća soba s vlastitom kupaonicom i garderobom, tri dječje sobe, dvije kupaonice.
Vlasništvo 1/1, bez tereta.
Odlična lokacija, tramvaj zona, blizina škole, vrtića, Kaptol centra i svih ostalih bitnih sadržaja.
SPECTO NEKRETNINE D.O.O.
Trnjanska cesta 71
ZAGREB


















