click to enable zoom
loading...
We didn't find any results
open map
View Roadmap Satellite Hybrid Terrain My Location Fullscreen
Transport
Supermarkets
Schools
Restaurants
Pharmacies
Hospitals

Prodaja-Stan 105m2-Streljacka ulica

650,000 EUR
Favorite
Your search results

Overview

  • Updated On:
  • 30 travnja, 2026
  • 2 Bedrooms
  • 2 Bathrooms
  • 105.00 m2

Opis

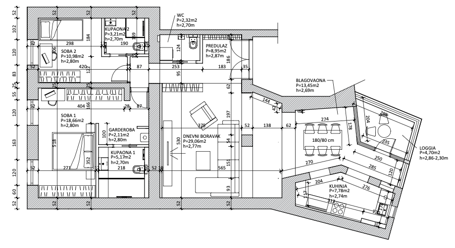
Prodajemo potpuno renoviran (završetak svibanj 2026.),prekrasan trosoban stan ukupne netto korisne površine 105,22 m2, na drugom katu održavane zgrade bez lifta, u Streljačkoj ulici kod Dežmanovog prolaza.

Stan se sastoji se od: ulaznog hodnika, gostinjskog wc-a ( s vešerajem i centralnim usisavačem), open space dnevnog boravka s blagavaonicom iz koje se izlazi na loggiu (4,70 m2) odvojenom kuhinjom, master spavaće sobe s garderobom i kupaonicom te još jedne spavaće sobe s vlastitom kupaonicom.

Stanu pripada spremište u podrumu cca. 5 m2.

Stolarija je drvena u spavaćim sobama, a PVC je u kuhinji i blagavaonici.

Grijanje je centralno etažno plinsko, te podno grijanje u kupaonicama (keramika).

Svaka soba ima klima uređaj.

Stan je trenutno pri završetku potpune renovacije, promjenjene su kompletno sve instalacije, stolarija, postavljen novi parket (chevron), vrhunska keramika, štukature….

Orijentacija stana je na sjever (spavaće sobe) i jug (dnevni boravak, blagavaonica, kuhinja)

Odlična lokacija, uži centar grada, blizina Dežmanovog prolaza, tramvajske stanice….

Parking je moguć (kupnja povlaštene karte) u garaži Tuškanac koja je udaljena 50m od stana.

Vlasništvo 1/1, bez tereta, etažirano, sve dozvole.

 

Za sva ostala pitanja slobodno nam se obratite.

 

SPECTO NEKRETNINE D.O.O.

Trnjanska cesta 71

ZAGREB

City:
State/County:
Country: Hrvatska (Hrvatska)
Open In Google Maps
Property Id : 33255
Price: 650,000 EUR
Property Size: 105.00 m2
Rooms: 3
Bedrooms: 2
Bathrooms: 2
Kat: 2.
Grijanje: Centralno etažno plinsko

Similar Listings

Prodaja

Prodaja-Stan 101m2- Vlaska

590,000 EUR
Prodajemo potpuno renoviran (2023. godine),prekrasan trosoban stan ukupne netto korisne po ...
Prodajemo potpuno renoviran (2023. godine),prekrasan trosoban stan ukupne netto korisne površine 100,93 m2, na četv ...
2 2 101.00 m2details
Prodaja

Prodaja-Stan 96m2-Ilica

475,000 EUR
Prodajemo potpuno renoviran i namješten stan površine 96 m2, na 1. katu dvorišne zgrade, u ...
Prodajemo potpuno renoviran i namješten stan površine 96 m2, na 1. katu dvorišne zgrade, u samom centru grada, u dv ...
2 2 96.00 m2details
Prodaja

Novogradnja-Stan 137m2-Nova ves

1,066,572 EUR
Prodajemo stan netto korisne površine 136,74 m2 na prvom katu novogradnje u izgradnji na N ...
Prodajemo stan netto korisne površine 136,74 m2 na prvom katu novogradnje u izgradnji na Novoj Vesi, na Medveščaku. ...
3 2 137.00 m2details
Prodaja

Prodaja-Stan 145m2-Gorice

649,000 EUR
Prodajemo kompletno uređen i opremljen stan, neto korisne površine 145,57 m2, na 2./2 katu ...
Prodajemo kompletno uređen i opremljen stan, neto korisne površine 145,57 m2, na 2./2 katu, zgrade iz 2012. godine, ...
3 2 145.00 m2details
Prodaja
Snižena cijena

Prodaja-Stan 115m2- Gupceva zvijezda

499,000 EUR
Prodajemo potpuno renoviran (2025. godine), četverosoban stan ukupne netto korisne površin ...
Prodajemo potpuno renoviran (2025. godine), četverosoban stan ukupne netto korisne površine 115,66 m2, na drugom ka ...
3 2 115.00 m2details
Prodaja

Novogradnja-Stan 86m2- Barutanski jarak

440,000 EUR
Prodajemo stan oznake B2, netto korisne površine 86,25m2, na prvom katu urbane vile u izgr ...
Prodajemo stan oznake B2, netto korisne površine 86,25m2, na prvom katu urbane vile u izgradnji koja se sastoji od ...
2 1 86.00 m2details

Filip Potkonjak

Agent za nekretnine

Contact Me

    Compare Listings

    Filip Potkonjak