Overview
- Updated On:
- 10 studenoga, 2025
- 2 Bedrooms
- 1 Bathrooms
- 65.00 m2
Opis
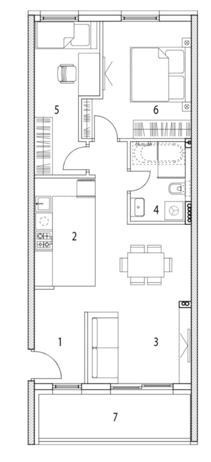
Iznajmljujemo kompletno namješten stan površine 64,29m2 na 3./5 katu zgrade s liftom, izgrađene 2025. godine, na Rudešu. na Zagrebačkoj cesti.
Sastoji se od: ulaznog hodnika, dnevnog boravka s blagavaonicom i kuhinjom, loggie, kupaonice s toaletom i 2 spavaće sobe.
Stanu također pripada i parkirno garažno mjesto na -1 etaži zgrade, površine 12,90m2.
Grijanje je centralno etažno plinsko, a stolarija je PVC.
Sva brojila odvojena.
Nitko još nije živio u stanu.
Minimalno trajanje najma je 12 mjeseci.
Prilikom najma plaća se jedna mjesečna najamnina unaprijed i polog u istom iznosu.
Odlična lokacija, blizina autobusne stanice(3 min pješice), ugostiteljskih objekata, dućana…
SPECTO NEKRETNINE D.O.O.
Trnjanska cesta 71
ZAGREB



















































