Overview
- Updated On:
- 15 siječnja, 2026
- 1 Bedrooms
- 80.00 m2
Opis
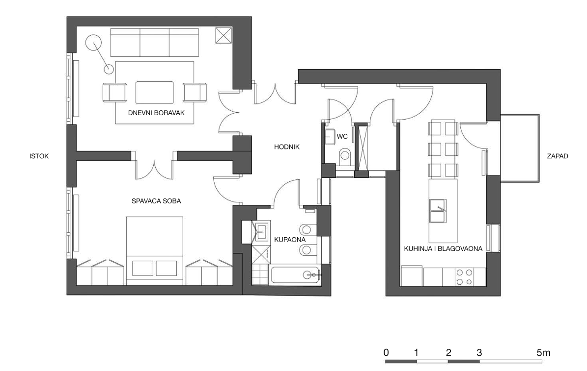
Iznajmljujemo stan površine 80m2, na prvom katu zgrade, u centru grada, u Krajiškoj ulici.
Sastoji se od: ulaznog hodnika, dnevnog boravka, spavaće sobe, kupaonice, wc-a, ostave, balkona i kuhinje s blagavaonicom.
Stan je u potpunosti adapatiran 2017. godine.
Grijanje je centralno etažno plinsko, a stolarija je drvena.
Minimalno trajanje najma je godinu dana.
Prilikom najma plaća se jedna mjesečna najamnina unaprijed i polog u istom iznosu.
Stan je dostupan od 01.09.2025. godine.
Agencijska provizija za najmoprimca iznosi jednu mjesečnu najamninu plus pdv.
Odlična lokacija, blizina tramvajske stanice, Britanskog trga, škole, ugostiteljskih objekata, dućana i svih ostalih bitnih sadržaja.
SPECTO NEKRETNINE D.O.O.
Trnjanska ceta 71
ZAGREB















































