Overview
- Updated On:
- 17 ožujka, 2026
- 3 Bedrooms
- 2 Bathrooms
- 115.00 m2
Opis
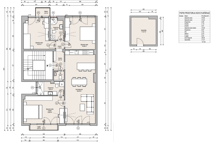
Prodajemo potpuno renoviran (2025. godine), četverosoban stan ukupne netto korisne površine 115,66 m2, na drugom katu armirano betonske zgrade, na Gupčevoj zvijezdi, Medvešćak.
Stan se sastoji se od: ulaznog hodnika, gostinjskog wc-a, spavaće sobe 1, spavaće sobe 2 s balkonom (2,03 m2), kupaonice s wc-om i tuš kabinom, open space dnevnog boravka s blagavaonicom i kuhinjom i master spavaće sobe s vlastitom kupaonicom te izlaskom na loggiu (2,63 m2), stambene površine 109,9 m2.
Stanu pripada spremište u pordumu zgrade, površine 11,47 (5,73) m2.
Stan je potpuno renoviran sa svim novim instalacijama (struja,voda,kanalizacija), opremljen vrhunskim parketom te keramikom u kupaonicama.
Stolarija je PVC s električnim roletama.
Grijanje je izvedeno preko dizalice topline s podnim grijanjem kroz cijeli stan.
Svaka soba ima klima uređaj.
Orijentacija stana je na Istok (dvije spavaće sobe) i Zapad (dnevni boravak i master spavaća soba)
Stan je jako svijetao i prostran, na izuzetno frekventnoj lokaciji u blizini dućana, škole, vrtića, bolnice, te javnog prijevoza (tramvaj)…
Parking je moguć oko zgrade u 2. zoni.
Vlasništvo 1/1, etažirano, sve dozvole.
Za sva ostala pitanja slobodno nam se obratite.
SPECTO NEKRETNINE D.O.O.
Trnjanska cesta 71
ZAGREB


























































