Overview
- Updated On:
- 10 listopada, 2025
- 4 Bedrooms
- 4 Bathrooms
- 122.00 m2
Opis
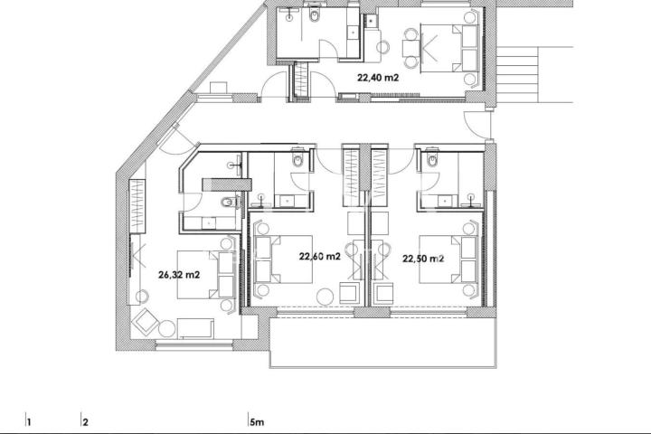
Prodajemo stan površine 122m2 koji se nalazi na prvom katu zgrade, u samom centru grada, na Dolcu.
Stan se sastoji od ulaznog hodnika, 4 odvojene, luksuzno uređene hotelske sobe sa vlastitim kupaonicama, spremišta i balkona/loggie površine 14,20m2.
Stanu pripada i spremište u podrumu površine 8,10m2.
Grijanje je izvedeno preko dizalica topline, a stolarija je drvena.
Uhodan posao turističkog iznajmljivanja, idealan za investiciju.
Vlasništvo 1/1, etažirano, uporabna dozvola.
Za više informacija, slobodno nam se obratite.
SPECTO NEKRETNINE D.O.O.
Trnjanska cesta 71
ZAGREB
City: Zagreb
Area: Donji Grad
State/County: Grad Zagreb
Country: Hrvatska (Hrvatska)
Open In Google Maps Property Id : 32105
Price: 780,000 EUR
Property Size: 122.00 m2
Rooms: 4
Bedrooms: 4
Bathrooms: 4
Energetski razred: U izradi
Kat: 1/3
Grijanje: Dizalica topline
Namještenost: Kompletno namješteno
























