Prodaja-Stan 145m2-Gorice

649,000 EUR
Favorite
Your search results

Overview

  • Updated On:
  • 1 travnja, 2026
  • 3 Bedrooms
  • 2 Bathrooms
  • 145.00 m2

Opis

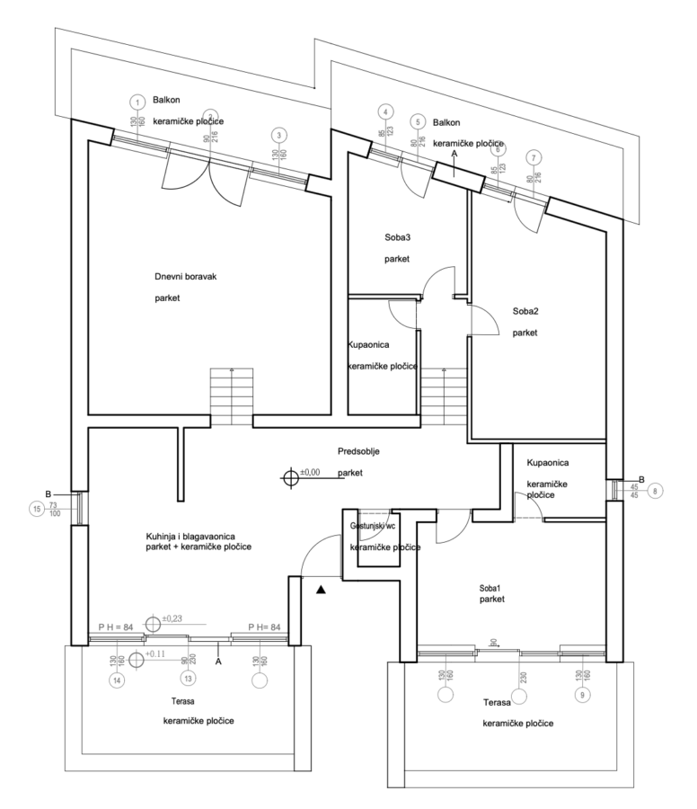
Prodajemo kompletno uređen i opremljen stan, neto korisne površine 145,57 m2, na 2./2 katu, zgrade iz 2012. godine, s 5 stanova, u Goricama na Maksimiru.

Sastoji se od: ulaznog hodnika, blagavaonice i kuhinje s izlaskom na terasu, prostranog dnevnog boravka s balkonom,gostinjskog wc-a, spavaće sobe s kupaonicom i terasom, te još dvije spavaće sobe sa zajedničkom kupaonicom i balkonom, neto korisne površine 129,31 m2.

Stanu pripadaju i dva vanjska parkirna mjesta svaki površine 12,5m2 u dvorištu zgrade pod rampom i spremište u prizemlju zgrade površine 20m2.

Grijanje je centralno etažno plinsko.

Stolarija je drvena.

Vlasništvo 1/1, bez tereta, etažirano, uporabna dozvola…

Odlična lokacija, blizina Maksimira, blizina autobusne stanice, škole, vrtića, dućana i svih ostalih bitnih sadržaja.

 

 

SPECTO NEKRETNINE D.O.O.

Trnjanska cesta 71

ZAGREB

City:
Area:
State/County:
Country: Hrvatska (Hrvatska)
Open In Google Maps
Property Id : 33169
Price: 649,000 EUR
Property Size: 145.00 m2
Rooms: 4
Bedrooms: 3
Bathrooms: 2
Godina izgradnje: 2012
Kat: 2/2
Parking: Dva vanjska parkirna mjesta
Grijanje: Centralno etažno plinsko

Similar Listings

Prodaja

Prodaja-Stan 101m2- Vlaska

590,000 EUR
Prodajemo potpuno renoviran (2023. godine),prekrasan trosoban stan ukupne netto korisne po ...
Prodajemo potpuno renoviran (2023. godine),prekrasan trosoban stan ukupne netto korisne površine 100,93 m2, na četv ...
2 2 101.00 m2details
Prodaja

Prodaja-Stan 96m2-Ilica

475,000 EUR
Prodajemo potpuno renoviran i namješten stan površine 96 m2, na 1. katu dvorišne zgrade, u ...
Prodajemo potpuno renoviran i namješten stan površine 96 m2, na 1. katu dvorišne zgrade, u samom centru grada, u dv ...
2 2 96.00 m2details
Prodaja

Novogradnja-Stan 137m2-Nova ves

1,066,572 EUR
Prodajemo stan netto korisne površine 136,74 m2 na prvom katu novogradnje u izgradnji na N ...
Prodajemo stan netto korisne površine 136,74 m2 na prvom katu novogradnje u izgradnji na Novoj Vesi, na Medveščaku. ...
3 2 137.00 m2details
Prodaja
Snižena cijena

Prodaja-Stan 115m2- Gupceva zvijezda

499,000 EUR
Prodajemo potpuno renoviran (2025. godine), četverosoban stan ukupne netto korisne površin ...
Prodajemo potpuno renoviran (2025. godine), četverosoban stan ukupne netto korisne površine 115,66 m2, na drugom ka ...
3 2 115.00 m2details
Prodaja

Novogradnja-Stan 86m2- Barutanski jarak

440,000 EUR
Prodajemo stan oznake B2, netto korisne površine 86,25m2, na prvom katu urbane vile u izgr ...
Prodajemo stan oznake B2, netto korisne površine 86,25m2, na prvom katu urbane vile u izgradnji koja se sastoji od ...
2 1 86.00 m2details
Prodaja

Stan 135m2-Svacicev trg

510,000 EUR
Prodajemo stan za adaptaciju, površine 135m2, na prvom katu zgrade, na odličnoj lokaciji, ...
Prodajemo stan za adaptaciju, površine 135m2, na prvom katu zgrade, na odličnoj lokaciji, u Kumičićevoj ulici s pog ...
135.00 m2details

Filip Potkonjak

Agent za nekretnine

Contact Me

    Compare Listings

    Filip Potkonjak