Overview
- Updated On:
- 16 travnja, 2026
- 2 Bedrooms
- 1 Bathrooms
- 72.00 m2
Opis
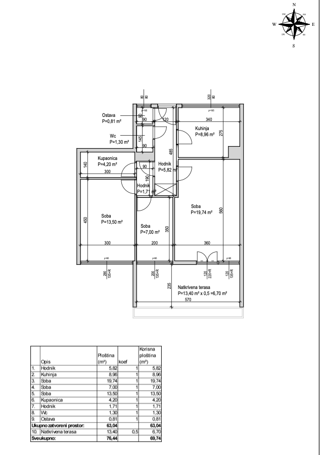
Prodajemo stan za renovaciju, netto korisne površine 72,03 m2 na prvom katu zgrade s liftom, izgrađene 1976. godine, u Ulici Božidara Magovca(nije Mamutica), Novi Zagreb Istok, Travno.
Sastoji se od: ulaznog hodnika, ostave, gostinjskog wc-a, kuhinje s blagavaonicom, dnevnog boravka, loggie, kupaonice s wc-om i 2 spavaće sobe.
Grijanje je centralno na toplanu, a stolarija je drvena.
Pričuva iznosi 35,20 EUR.
Stanu također pripada i spremište u prizemlju.
Vlasništvo 1/1, bez tereta, etažirano, uporabna dozvola.
Odlična lokacija, blizina autobusne stanice, škole, vrtića, dućana i svih ostalih bitnih sadržaja.
SPECTO NEKRETNINE D.O.O.
Trnjanska cesta 71
ZAGREB
A+
A
B
C
Your energy class D
D
E
F
G
H
City: Zagreb
Area: Novi Zagreb - Istok
State/County: Grad Zagreb
Country: Hrvatska (Hrvatska)
Open In Google Maps Property Id : 33200
Price: 219,000 EUR
Property Size: 72.00 m2
Rooms: 3
Bedrooms: 2
Bathrooms: 1
Energy class: D
Godina izgradnje: 1976
Energetski razred: D
Kat: 1/4
Grijanje: Centralno toplana




















































